Integral 43



Design


Integral 60


Navigation


Chantier


Composite


Expédition



Voyage

javascript
 s h o w

ICP44 - photo © H. Bourg 2009

Grand Integral - photo © Dujardin Icofrance 2008

 

 

 

p e t e r   g a l l i n e l l i

the integral series are fast and tough expedition sailboats
the integral fleet is present on all oceans of the world

 


Design naval
Préparation
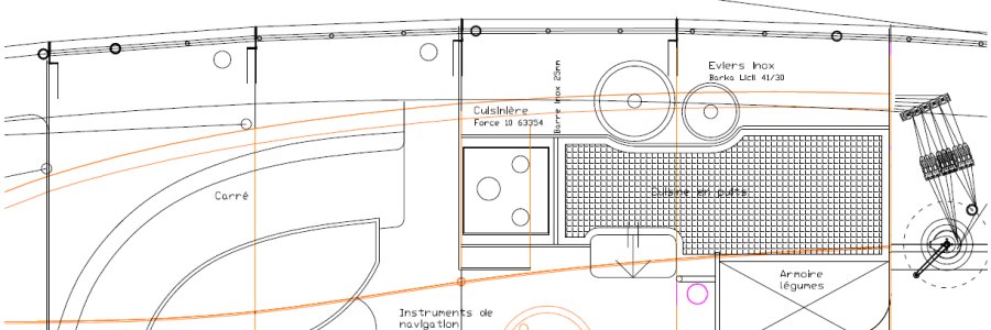
Architecture
Systèmes énergétiques


Yacht Design
Vorbereitung
Architektur
Energiesysteme


Naval design
Preparation
Architecture
Energy systems

 

 

HOME | VOY@GE | PASSIVE IGLOO | SHOW | INT60 | INT43 | ICP44 | CONTACT

design naval | architecture | énergie - naval design | architecture | energy

exploration | voile-aventure - exploration | adventure sailing

last update : april 2020 © peter gallinelli 2020

Informations indicatives et non-contractuelles